Wir über uns
Projekt R St E
Stadthagen-West
Georgschacht
Nienstädt
Sülbeck
Obernkirchen
Krainhagen-Röhrkasten
Bad Eilsen
Steinbergen
Rinteln
Sonstige Projekte
Ausstellung & Presse
Technik
Bilder der Strecke
Bilder einer Ausstellung
Impressum / Satzung
Links


Der zweite Bauabschnitt umfasst das ehemalige Steinkohlebergwerk Georgschacht mit seinem Zechenbahnhof und den südlich des Bergwerkes gelegenen Haltepunkt Georgschacht mit den Schachtanlagen E0 und F0.

Der Georgschacht

Der Georgschacht ist die zentralen Schachtanlage eines der ältesten Bergbaugebiete Deutschlands. Mit dem Georgschacht begann 1902 der Tiefbergbau in der Schaumburger Senke. Bis zu diesem Zeitpunkt folgte man den Kohleflözen von den Berghängen aus. Der Förderschacht I des Georgschacht erreichte in einer Tiefe von 250 m das Kohleflöz der G-Sohle. Die 130 Millionen Jahre alte Wealden-Kohle wurde auf einer Ausdehnung von 8500 m nach Westen und 3000 m nach Osten abgebaut. Zwischen 1925 und 1928 wurde 60 m südlich der Förderschacht II bis auf 372 m Tiefe abgeteuft. Mit diesem Schacht wurde die H-Sohle in 350 m Tiefe erschlossen.

MEC Stadthagen: Stadthagen Georgschacht um 1930 - Quelle: Stadtarchiv Stadthagen

Stadthagen Georgschacht um 1930 - Quelle: Stadtarchiv Stadthagen

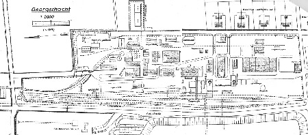
MEC Stadthagen: Stadthagen Georgschacht: Plan der Anlagen um 1955. Sammlung Ludewig

Stadthagen Georgschacht: Plan der Anlagen um 1955. Sammlung Ludewig


Georgschacht_Plan_1955

Der Georgschacht kann als Musterbeispiel eines Kohlebergwerkes verstanden werden. Auf dem überschaubaren Gelände befanden sich alle Einrichtungen die zur Kohleförderung und -veredelung notwendig waren: neben den beiden Fördertürmen mit ihren Maschinenhäusern standen die Kohlenwäsche zur Sortierung von Kohle und Abraum, zwei Kesselhäuser zur Dampferzeugung, eine Elektrozentrale mit Generatoren zur Stromerzeugung, eine Kokerei, die neben Gas auch Koks, Teer, Ammonium-Dünger, Benzol und Naphthalin lieferte. Das Gas wurde in einer Verdichterstation mit hohem Druck durch eine Leitung nach Obernkirchen geliefert. 1951 wurde noch eine Schlackenstein-Fabrik mit einer Tagesleistung von 5000 Hohlblocksteinen errichtet. Mit diesen Steinen konnten die Wohnsiedlungen für die neuen Zechenanlagen Lüdersfeld, Beckedorf und Auhagen gebaut werden.  Umfangreiche Gleisanlagen mit Anschluss an die 1900 eröffnete R.St.E ermöglichten die Abwicklung der notwendigen Transporte. Werkstätten und Verwaltungsgebäude vervollständigen das Bild. 1960 wurde der Schaumburger Kohlenbergbau auf allen Schachtanlagen endgültig eingestellt. Über 3000 Beschäftigte verloren ihre Arbeit. Einige wenige Jahre wurden einzelne Werkstätten noch weiter betrieben, schließlich aber doch geschlossen. Die großen Anlagen wurden gesprengt und abgerissen, einige Gebäude verkauft, der Rest dem Verfall überlassen.

Der Georgschacht im Modell

MEC Stadthagen: Georgschacht im Modell: 3D-Simulation

Georgschacht im Modell: 3D-Simulation

Für eine maßstabgerechte Darstellung der Anlagen ist eine Fläche von 2,2 m x 9 m notwendig. Mehr als 40 Gebäude müssen nachgebaut werden. Als Material dienen ABS- und MDF-Platten. Für die vielen Ziegelmauern verwenden wir die Kunststoff-Dekorplatte von Auhagen, dazu Profile von Plastruct, Evergreen und Aeronaut.

Einzelne Modelle wurden als Versuchsträger vorab erstellt, um die Bautechnik und auch die optische Wirkung zu testen.

MEC Stadthagen: Modell der Kokerei auf der 1. Freiwilligenbörse 05.12.2009 in Stadthagen

Modell der Kokerei auf der 1. Freiwilligenbörse 05.12.2009 in Stadthagen

Zum 50. Jahrestag der Schließung des Schaumburger Bergbaus veranstaltet das Bergbaumuseum Lindhorst ab dem 14. März 2010 eine Sonderausstellung. Das Modell der Kokerei ist Bestandteil dieser Ausstellung.


Das rege Interesse der Ausstellungsbesucher und die intensiven Gespräche, die sich aus vielen Nachfragen zum Thema Georgschacht ergeben haben, ist für uns Ansporn, den Bau der Bergwerksgebäude intensiv voranzutreiben

MEC Stadthagen: Modell der Kokerei im Bergbaumuseum Lindhorst - Hof Gümmer Januar 2010

Modell der Kokerei im Bergbaumuseum Lindhorst - Hof Gümmer Januar 2010

Das Betriebsgelände des Georgschachtes ist eine kleine Welt für sich. Auf den Luftbildern ist eine auf den ersten Blick eine verwirrende Ansammlung von Gebäuden und Anlagen zu sehen, die scheinbar willkürlich über das Areal verteilt sind. Bei genauer Betrachtung lassen sich die Aufgaben der einzelnen Anlagenteile bestimmen und es werden ihre Beziehungen und gegenseitigen Abhängigkeiten erkennbar. 

Betrachten wir nun die einzelnen Anlagenteile, wie sie einst waren und wie wir versuchen, diese in unserem Modell umzusetzen.  

Gleisanlagen

MEC Stadthagen: Bahnhofsplan Georgschacht Stand 1936 Quelle: Archiv der DEW

Bahnhofsplan Georgschacht Stand 1936 Quelle: Archiv der DEW


Bahnhofsplan_1936_Georgschacht

MEC Stadthagen: Bahnhofsplan Georgschacht Stand vor 1925

Bahnhofsplan Georgschacht Stand vor 1925


RStE_Blatt_24_Stadthagen_Georgschacht


Das Bergwerk verfügte über einen umfangreichen Grubenbahnhof. Über ein Anschlussgleis mit zweigleisigem Übergabebereich wurden die vier Aufstellgleise erreicht. Vielfältige Gleisverbindungen und eine Wagon-Schiebebühne ermöglichten das Anfahren der einzelnen Verladepositionen. Das im Norden gelegene Umfahrungsgleis erlaubte das Erreichen der Produktionsstätten für Naphthalin, Teer, Benzol und Ammonium, der Magazine und Werkstätten im Südosten des Geländes. Zwei Wagondrehscheiben erlaubten die Erschließung des Geländes in West-Ost-Richtung.

Arbeitstäglich wurden fünf Kohlezüge und fünf Leerwagenzüge mit jeweils 20 Wagons abgefertigt. Die Züge wurden auf dem Streckengleis der RStE geteilt und die 10er-Einheiten in die Übergabegleise rangiert. 


Fahrzeuge

Der Georgschacht verfügte neben einer großen Anzahl eigener Güterwagen auch über eigene Dampflokomotiven: 2 zweiachsige Dampfspeicherloks und kurzzeitig eine B-gekuppelte Dampflok. Mit der Schließung der Kohleförderung in Barsinghausen kam eine weitere Dampfspeicherlok und eine C-gekuppelte Dampflok zum Bestand hinzu.

MEC Stadthagen: Dampfspeicherloks warten nach der Schließung auf den Abtransport.

Dampfspeicherloks warten nach der Schließung auf den Abtransport. Links die beiden Georgschachtmaschinen, rechts die Maschine aus Barsinghausen - Sammlung Ludewig

MEC Stadthagen: Dampfspeicherlok auf dem Georgschacht

Dampfspeicherlok auf dem Georgschacht - Sammlung Ludewig

Der Herr rechts auf der Lok ist August Rode jun (*1893, +1971), der nach seiner Schlosserausbildung (1907-1911) in Stadthagen zur Hanomag nach Hannover-Linden wechselte und dort als Werkmeister mit dem Neu- und Umbau von Lokomotiven betraut war.


MEC Stadthagen: Georgschacht: Dampfspeicherlok im Rangierdienst um 1955. Quelle: Berg- und Stadtmuseum Obernkirchen 

Georgschacht: Dampfspeicherlok im Rangierdienst um 1955. Quelle: Berg- und Stadtmuseum Obernkirchen

MEC Stadthagen: Georgschacht: Die von Barsinghausen übernommene Hanomag-Lok im Einsatz. um 1960. Quelle; Berg- und Stadtmuseum Obernkirchen

Georgschacht: Die von Barsinghausen übernommene Hanomag-Lok im Einsatz. um 1960. Quelle; Berg- und Stadtmuseum Obernkirchen

MEC Stadthagen: Georgschacht: Dampfspeicherlok im Rangierdienst um 1960. Quelle: Kreismedienstelle

Georgschacht: Dampfspeicherlok im Rangierdienst um 1960. Quelle: Kreismedienstelle

MEC Stadthagen: Georgschacht: Am Bunkerturm der Kokerei befand sich die Aufladestation, an der die Speicherkessel der feuerlosen Lokomotiven mit Frischdampf aufgeladen wurden. Quelle: Berg- und Stadtmuseum Obernkirchen.

Georgschacht: Am Bunkerturm der Kokerei befand sich die Aufladestation, an der die Speicherkessel der feuerlosen Lokomotiven mit Frischdampf aufgeladen wurden. Quelle: Berg- und Stadtmuseum Obernkirchen.

MEC Stadthagen: Georgschacht: Zwei Dampfspeicherloks im Einsatz. um 1955. Quelle: Kreismedienstelle

Georgschacht: Zwei Dampfspeicherloks im Einsatz. um 1955. Quelle: Kreismedienstelle

Für den Modellbetrieb greifen wir auf Industriemodelle zurück. Hier einige Bilder vom Probebetrieb mit den Modellen verschiedener Hersteller. Einige Details und auch die Farbgebung ist den Vorbildern noch anzupassen.

MEC Stadthagen: Georgschacht im Modell: Leerwagenzug auf dem Weg zur Koksverladung. September 2013

Georgschacht im Modell: Leerwagenzug auf dem Weg zur Koksverladung. September 2013 

MEC Stadthagen: Georgschacht im Modell: O-Wagen werden an der Kohlenwäsche mit Wealdenkohle beladen. September 2013

Georgschacht im Modell: O-Wagen werden an der Kohlenwäsche mit Wealdenkohle beladen. September 2013 

MEC Stadthagen: Georgschacht im Modell: O-Wagen werden an der Kohlenwäsche mit Wealdenkohle beladen. September 2013

Georgschacht im Modell: O-Wagen werden an der Kohlenwäsche mit Wealdenkohle beladen. September 2013

MEC Stadthagen: Georgschacht im Modell: Leerwagenzug wird vom Übergabegleis abgeholt. September 2013

Georgschacht im Modell: Leerwagenzug wird vom Übergabegleis abgeholt. September 2013

MEC Stadthagen: Georgschacht im Modell: Leerwagenzug wird vom Übergabegleis abgeholt. September 2013

Georgschacht im Modell: Leerwagenzug wird vom Übergabegleis abgeholt. September 2013


Kohlenwäsche

Erbaut 1901-02.

In der Kohlenwäsche oder auch Separation wurde die geförderte Kohle von Taubgestein getrennt. An Lesebändern wurden größere Steine von Hand aus dem vorbeilaufenden Materialstrom herausgesammelt. Das verbleibende Material lief anschließend über Sichter und durch Brechwerke in die Flotation. In der Flotation wird im Wasser die leichtere Kohle vom schwereren Taubgestein getrennt. Die Beimischung von Teeröl, aus dem Kokereibetrieb, erleichterte die Trennung. Die Kohle musste anschließend wieder getrocknet werden, bevor sie der innerbetrieblichen Nutzung - Kesselhaus II, Kokerei, Brikettfabrik Obernkirchen -oder zum Verkauf genutzt werden konnte. Das eingesetzte Wasser wurde über Klärsümpfe von Schwebstoffen grob gereinigt.

Zuerst entstanden Rekonstruktionszeichnungen für die Kohlenwäsche und das anliegende Förderhaus I. Die Kohlenwäsche ist, durch viele An- und Umbauten in den fast 60 Betriebsjahren, zum komplexesten Gebäude des Georgschachtes geworden. Es fiel dem Abriss bereits kurz nach der Schließung zum Opfer.

MEC Stadthagen: Kohlenwäsche vor dem Abriss - Quelle: Sammlung Ludewig

Kohlenwäsche vor dem Abriss - Quelle: Sammlung Ludewig

MEC Stadthagen: Rekonstruktion - Ansicht von Süden

Rekonstruktion Kohlenwäsche - Ansicht von Süden

MEC Stadthagen: Rekonstruktion - Ansicht von Osten

Rekonstruktion Kohlenwäsche - Ansicht von Osten

MEC Stadthagen: Rekonstruktion - Ansicht von Westen

Rekonstruktion Kohlenwäsche - Ansicht von Westen

MEC Stadthagen: Modell der Kohlenwäsche im Rohbau - Ansicht aus Nord-West

Modell der Kohlenwäsche im Rohbau - Ansicht aus Nord-West

MEC Stadthagen: Modell der Kohlenwäsche im Rohbau - Westansicht

Modell der Kohlenwäsche im Rohbau - Westansicht

MEC Stadthagen: Modell der Kohlenwäsche im Rohbau - Kohlenverladung für Straßenfahrzeuge

Modell der Kohlenwäsche im Rohbau - Kohlenverladung für Straßenfahrzeuge

MEC Stadthagen: Modell der Kohlenwäsche im Rohbau - Südansicht

Modell der Kohlenwäsche im Rohbau - Südansicht

MEC Stadthagen: Modell der Kohlenwäsche im Rohbau - Ostansicht

Modell der Kohlenwäsche im Rohbau - Ostansicht

MEC Stadthagen: Georgschacht Förderturm I

Georgschacht Förderturm I

MEC Stadthagen: Kohlenwäsche von Nordosten: Im Gebäude-Eck fehlt noch die Kohleverteilstation, von der aus die Kokerei und die Kesselhäuser durch zwei Hängebahnen mit Kohle versorgt wurden. April 2012

Kohlenwäsche von Nordosten: Im Gebäude-Eck fehlt noch die Kohleverteilstation, von der aus die Kokerei und die Kesselhäuser durch zwei Hängebahnen mit Kohle versorgt wurden. April 2012 

Förderschacht I

Erbaut 1901-02

In der direkten Nachbarschaft der Kohlenwäsche befand sich südlich der Förderturm I mit seinem östlich gelegenen Maschinenhaus. Der Förderschacht erreichte in einer Tiefe von 250 m das Kohleflöz der G-Sohle

MEC Stadthagen: Förderturm 1 und Maschinenhaus 1 im Bau 1902. Quelle: Stadtarchiv

Förderturm I und Maschinenhaus I im Bau 1902. Quelle: Stadtarchiv

Während die beiden Fördertürme bereits kurz nach der Schließung gesprengt wurden, überlebten die Maschinenhäuser wesentlich länger.

MEC Stadthagen: Zustand des Maschinenhauses 1 in den späten 90er Jahren. Quelle: Stadtarchiv

Zustand des Maschinenhauses I in den späten 90er Jahren. Quelle: Stadtarchiv

MEC Stadthagen: Maschinenhaus 1 mit Förderturm im Modell. April 2012

Maschinenhaus I mit Förderturm im Modell. April 2012

MEC Stadthagen: Modell einer dampfbetriebenen Fördermaschine, wie sie ähnlich auch in den Anfangsjahren des Georgschachtes vorhanden war. April 2012

Modell einer dampfbetriebenen Fördermaschine, wie sie ähnlich auch in den Anfangsjahren des Georgschachtes vorhanden war. April 2012

Förderschacht II

Um die Kohle der H-Sohle in 372 m Tiefe erschließen zu können, wurde zwischen 1925 und 1928 ca. 60 m südlich vom Schacht I ein neuer Förderschacht abgeteuft. Der Schacht wurde mit einen Durchmesser von 4,5 m 372 m tief ausgebaut. Die neue Förderhalle wurde über eine Verbindungsbrücke für den Wagenumlauf mit der Schachthalle I verbunden.

MEC Stadthagen: Georgschächte 1 und 2 um 1935. Quelle: Sammlung Ludewig

Georgschächte I und II um 1935. Quelle: Sammlung Ludewig

MEC Stadthagen: Rekonstruktion der Förderschächte I und II. Stand August 2012

Rekonstruktion der Förderschächte I und II. Stand August 2012

MEC Stadthagen: Schachthalle II mit Fördergerüst aus südwestlicher Richtung gesehen. Stand 08.2012

Schachthalle II mit Fördergerüst aus südwestlicher Richtung gesehen. Stand 08.2012

MEC Stadthagen: .noch fehlen die Außentreppen an Schachthalle und Fördergerüst. Stand 08.2012

...noch fehlen die Außentreppen an Schachthalle und Fördergerüst. Stand 08.2012

MEC Stadthagen: Die beiden Schachthallen aus südöstlicher Richtung gesehen. Stand August 2012

Die beiden Schachthallen aus südöstlicher Richtung gesehen. Stand August 2012 

Kokerei

Um die Leistung der Kokerei und die Gewinnung von Nebenprodukten zu steigern, wurde in den Jahren 1925-26 im nördlichen Betriebsgelände durch die Firma Krupp-Koppers eine neue Kokerei inklusive Nebenanlagen errichtet. Die Kokerei hatte zuerst 50 Batterieöfen wurde aber bald auf 60 Öfen erweitert.

MEC Stadthagen: Georgschacht: neue Kokerei. Werksfoto Krupp-Koppers, Essen. Quelle: Berg- u. Stadtmuseum Obernkirchen

Georgschacht: neue Kokerei. Werksfoto Krupp-Koppers, Essen. Quelle: Berg- u. Stadtmuseum Obernkirchen 

MEC Stadthagen:Georgschacht: neue Kokerei 1926. Werksfoto Krupp-Koppers, Essen. Quelle: Berg- u. Stadtmuseum Obernkirchen

Georgschacht: neue Kokerei 1926. Werksfoto Krupp-Koppers, Essen. Quelle: Berg- u. Stadtmuseum Obernkirchen 

MEC Stadthagen: Georgschacht: neue Kokerei noch mit 50 Batterieöfen 1926. Werksfoto Krupp-Koppers, Essen. Quelle: Berg- u. Stadtmuseum Obernkirchen

Georgschacht: neue Kokerei noch mit 50 Batterieöfen 1926. Werksfoto Krupp-Koppers, Essen. Quelle: Berg- u. Stadtmuseum Obernkirchen 

MEC Stadthagen: Georgschacht im Modell - Kokerei "Schwarze Seite"

Georgschacht: Kokerei "Schwarze Seite"

MEC Stadthagen: Georgschacht im Modell - Kokerei "Weiße Seite"

Georgschacht: Kokerei "Weiße Seite"

MEC Stadthagen: Georgschacht im Modell - Ausdrückmaschinen auf der Weißen Seite

Georgschacht: Ausdrückmaschinen auf der "Weißen Seite"

MEC Stadthagen: Georgschacht im Modell - Koksverladung und Kokerei

Georgschacht: Koksverladung und Kokerei

MEC Stadthagen: Georgschacht: Kokerei und Koksbrecher im Modell. Stand Aug. 2012

Georgschacht: Kokerei und Koksbrecher im Modell. Stand Aug. 2012

Neuer Koksbrecher

Erbaut 1925-26.

Der in der Kokerei erzeugte Koks wurde in speziellen eisernen Kübeln mit einem elektrisch betriebenen Flachwagen zum Koksbrecher transportiert. Eine Krananlage auf der östlichen Gebäudeseite hob die Kübel über die in 26m Höhe befindliche Bunkeröffnung und entleerte dort die Behälter. Aus diesem Bunker trat der Rohkoks seine Reise über Brecher und Siebe in die verschiedenen Lagerbunker an. Der Koks wurde nach Korngröße separiert und zur Verladung in Schienen und Landfahrzeuge bereitgehalten. Angeboten wurde Koks-Asche: Korngröße 0-15mm, Koks IV: 15-20mm, Koks III: 20-40mm, Koks II: 20-70mm, Koks I: 70-90mm und Grob Koks: >90mm. Das über 36m hohe Gebäude verfügte über eine Bunkerkapazität von 265t.

MEC Stadthagen: Georgschacht: Koksbrecher und Gleisanlagen 1955. Blick von Südwesten. Quelle: Kreismedienstelle

Georgschacht: Koksbrecher und Gleisanlagen 1955. Blick von Südwesten. Quelle: Kreismedienstelle

MEC Stadthagen: Georgschacht: Koksbrecher und Kokerei 1955. Blick von Nordwesten. Quelle: Kreismedienstelle

Georgschacht: Koksbrecher und Kokerei 1955. Blick von Nordwesten. Quelle: Kreismedienstelle

MEC Stadthagen: Georgschacht: Der "Esslinger" an gleicher Stelle im Modell. September 2012

Georgschacht: Der "Esslinger" an gleicher Stelle im Modell. September 2012

MEC Stadthagen: Georgschacht: Koksbrecher und Gleisanlagen im Modell. Blick von Südwesten. Stand Aug. 2012

Georgschacht: Koksbrecher und Gleisanlagen im Modell. Blick von Südwesten. Stand Aug. 2012

MEC Stadthagen: Georgschacht: Koksbrecher und Gleisanlagen im Modell. Vor dem Steuerhaus der Krananlage stehen 2 Kokskübel. Blick von Osten. Stand Aug. 2012

Georgschacht: Koksbrecher und Gleisanlagen im Modell. Vor dem Steuerhaus der Krananlage stehen 2 Kokskübel. Blick von Osten. Stand Aug. 2012

MEC Stadthagen: Georgschacht: Koksbrecher und Gleisanlagen im Modell. Blick von Nordosten. Stand Aug. 2012

Georgschacht: Koksbrecher und Gleisanlagen im Modell. Blick von Nordosten. Stand Aug. 2012

MEC Stadthagen: Georgschacht: Koksbrecher und Gleisanlagen im Modell. Blick von Norden. Stand Aug. 2012

Georgschacht: Koksbrecher und Gleisanlagen im Modell. Blick von Norden. Stand Aug. 2012

Anlagen zur Gewinnung und Verarbeitung der Kokerei-Nebenprodukte

Die Aufgabe der Kokerei bestand spätestens mit Beginn des 20. Jahrhunderts nicht ausschließlich in der Herstellung von Koks und Kokereigas - Leuchtgas -, sondern verstärkt in der Gewinnung von Nebenprodukten: Ammoniak für die Dünger- und Sprengstoffherstellung, Benzol als Motorentreibstoff, sowie Naphthalin, Pech und Teer für die chemische Industrie. Erst die Nebenprodukte machten den Kohleabbau in Schaumburg in der Konkurrenz zum Ruhrgebiet für einige Jahrzehnte rentabel. Die Nebenprodukteanlagen bedeckten das nördliche Drittel des Betriebsgeländes. 

Ammoniak-Fabrik

Die Ammoniak-Fabrik wurde in den Jahren 1925-26 durch die Firma Krupp-Koppers erstellt. In Ihr wurde aus dem Kokerei-Gas nach dem Koppers-Verfahren Ammonium gewonnen. Das Ammonium bildete die Grundlage für die Stickstoff-Chemie, als Ersatz für die Salpeterimporte aus Südamerika.

MEC Stadthagen: Georgschacht: Gaskühlanlage und Ammoniakfabrik 1926. Quelle: Berg- und Stadtmuseum Obernkirchen

Georgschacht: Gaskühlanlage und Ammoniak-Fabrik 1926. Quelle: Berg- und Stadtmuseum Obernkirchen

MEC Stadthagen: Georgschacht: Ammoniak-Fabrik im Februar 2010

Georgschacht: Ammoniak-Fabrik im Februar 2010

MEC Stadthagen: Georgschacht: Bau der Ammoniakfabrik 1925-26. Quelle: Berg- und Stadtmuseum Obernkirchen

Georgschacht: Bau der Ammoniak-Fabrik 1925-26. Quelle: Berg- und Stadtmuseum Obernkirchen

MEC Stadthagen: Georgschacht: Ammoniak-Fabrik, Ansicht von Süden. Quelle: Archiv Clausthal-Zellerfeld

Georgschacht: Ammoniak-Fabrik, Ansicht von Süden. Quelle: Archiv Clausthal-Zellerfeld

MEC Stadthagen: Georgschacht: Ammoniak-Fabrik, Ansicht von Westen. Quelle: Archiv Clausthal-Zellerfeld

Georgschacht: Ammoniak-Fabrik, Ansicht von Westen. Quelle: Archiv Clausthal-Zellerfeld

MEC Stadthagen: Georgschacht: Grundriss der Ammoniak-Fabrik. Quelle: Archiv Clausthal-Zellerfeld

Georgschacht: Grundriss der Ammoniak-Fabrik. Quelle: Archiv Clausthal-Zellerfeld

Für die Umsetzung in das Modell kommen Kunststoffplatten aus dem Architekturbedarf zum Einsatz.

MEC Stadthagen: Georgschacht: Ammoniak-Fabrik im Modell. Ansicht von Süden. Jan.2013

Georgschacht: Ammoniak-Fabrik im Modell. Ansicht von Süden. Jan.2013

MEC Stadthagen: Georgschacht: Ammoniak-Fabrik im Modell. Ansicht von Norden. Jan.2013

Georgschacht: Ammoniak-Fabrik im Modell. Ansicht von Norden. Jan.2013

MEC-Stadthagen: Georgschacht: Ammoniak-Fabrik im Modell. Süd-Eingang. Jan.2013

Georgschacht: Ammoniak-Fabrik im Modell. Süd-Eingang. Jan.2013

MEC Stadthagen: Georgschacht: Ammoniak-Fabrik im Modell. Süd-West-Ecke. Jan.2013

Georgschacht: Ammoniak-Fabrik im Modell. Süd-West-Ecke. Jan.2013

MEC Stadthagen: Georgschacht: Ammoniak-Fabrik im Modell. Blick in die Südhalle. Jan.2013

Georgschacht: Ammoniak-Fabrik im Modell. Blick in die Südhalle. Jan.2013

MEC Stadthagen: Georgschacht: Ammoniak-Fabrik im Modell. Blick in die Pumpenhalle. Jan.2013

Georgschacht: Ammoniak-Fabrik im Modell. Blick in die Pumpenhalle. Jan.2013


Salzlager

Die Halle zur Lagerung des Ammonium-Salzes wurde 1914 nördlich der alten Ammoniumfabrik erbaut und 1926 erweitert. 

MEC Stadthagen: Georgschacht: Zeichnung für die Erweiterung des Salzlagers. Quelle: Stadtarchiv Stadthagen

Georgschacht: Zeichnung für die Erweiterung des Salzlagers. Quelle: Stadtarchiv Stadthagen

MEC Stadthagen: Georgschacht: Salzlager im Modell. Ansicht von Süden. März 2013

Georgschacht: Salzlager im Modell. Ansicht von Süden. März 2013

MEC Stadthagen: Georgschacht: Salzlager im Modell. Links die Ammonium-Fabrik, rechts die Sulfat-Fabrik. März 2013

Georgschacht: Salzlager im Modell. Links die Ammonium-Fabrik, rechts die Sulfat-Fabrik. März 2013

MEC Stadthagen: Georgschacht: Salzlager im Modell. Ansicht von Norden mit der Rampe für den Landhandel. März 2013

Georgschacht: Salzlager im Modell. Ansicht von Norden mit der Rampe für den Landhandel. März 2013

Sulfatfabrik

Erbaut 1929-30.

Für die 1926 fertiggestellte Ammoniumfabrik musste die benötigte Schwefelsäure zugekauft werden. In der neuen Anlage wurde die Schwefelsäure selbst hergestellt. Auch die Sulfat-Produktion wurde erheblich gesteigert. Die gerade einmal 4 Jahre jüngere Anlage wurde nur noch als Reserveanlage betrieben.

MEC Stadthagen: Georgschacht: links das Gebäude ser ersten Ammoniak-Fabrik, in der Mitte die Ruine des Salzlagers ohne Dach, dahinter die neue Ammonium-Fabik und rechts die Halle der Sulfatfabrik. Auf dem freien Platz standen die Waschtürme und Gaskühler. ca. 1990. Quelle Stadtarchiv Stadthagen.

Georgschacht: links das Gebäude ser ersten Ammoniak-Fabrik, in der Mitte die Ruine des Salzlagers ohne Dach, dahinter die neue Ammonium-Fabik und rechts die Halle der Sulfatfabrik. Auf dem freien Platz standen die Waschtürme und Gaskühler. ca. 1990. Quelle Stadtarchiv Stadthagen.

MEC Stadthagen: Georgschacht: ln der Mitte die Sulfat-Fabrik, rechts das Salzlagers, dahinter die neue Ammonium-Fabik und ganz links die Benzolfabrik. 1934. Quelle Stadtarchiv Stadthagen.

Georgschacht: ln der Mitte die Sulfat-Fabrik, rechts das Salzlagers, dahinter die neue Ammonium-Fabik und ganz links die Benzolfabrik. 1934. Quelle Stadtarchiv Stadthagen.

MEC Stadthagen: Georgschacht: Plan der Sulfat-Fabrik 1929. Quelle Staatsarchiv Clausthal.

Georgschacht: Plan der Sulfat-Fabrik 1929. Quelle Staatsarchiv Clausthal.

MEC Stadthagen: Georgschacht: Sulfat-Fabrik im Modell. Ansicht von Süden. März 2013

Georgschacht: Sulfat-Fabrik im Modell. Ansicht von Süden. März 2013

MEC Stadthagen: Georgschacht: Sulfat-Fabrik im Modell. Dach für die Halle der Schwefelöfen. März 2013

Georgschacht: Sulfat-Fabrik im Modell. Dach für die Halle der Schwefelöfen. März 2013

MEC Stadthagen: Georgschacht: Sulfat-Fabrik im Modell. Ansicht von Norden. März 2013

Georgschacht: Sulfat-Fabrik im Modell. Ansicht von Norden. März 2013


Benzolfabrik

Erbaut 1914.

Anlage zur Benzolgewinnung aus dem Kokereigas. Benzol wurde als Motorentreibstoff verwendet. Der Deutsche Steinkohlen Verband vertrieb das Benzol durch den Benzolvertrieb BV Aral. Aral ist ein Kunstwort aus den beiden Handelsstoffen: Aromat und Aliphat.

MEC Stadthagen: Georgschacht: Benzolfabrik mit Waschkolonnen 1927. Quelle: Berg- und Stadtmuseum Obernkirchen

Georgschacht: Benzolfabrik mit Waschkolonnen 1927. Quelle: Berg- und Stadtmuseum Obernkirchen

Georgschacht: Benzolfabrik Waschkolonnen um 1950. Quelle: Stadtarchiv

Georgschacht: Benzolfabrik Waschkolonnen um 1950. Quelle: Stadtarchiv

MEC Stadthagen: Georgschacht: Benzolfabrik im Februar 2010

Georgschacht: Benzolfabrik im Februar 2010


Naphthalin, Pech und Teer

Erbaut 1914.

MEC Stadthagen: Georgschacht: Teerdestillationum 1950. Quelle: Stadtarchiv

Georgschacht: Teerdestillation um 1950. Quelle: Stadtarchiv

MEC Stadthagen: Georgschacht: Teerdestillation, Pechkühlung und Naphtalin-Gewinnung 1930. Quelle: Stadtarchiv

Georgschacht: Teerdestillation, Pechkühlung und Naphthalin-Gewinnung 1930. Quelle: Stadtarchiv

MEC Stadthagen: Georgschacht: Teerdestillation, Pechkühlung und Naphtalin-Gewinnung 1930. Quelle: Stadtarchiv

Georgschacht: Teerdestillation, Pechkühlung und Naphthalin-Gewinnung 1930. Quelle: Stadtarchiv

MEC Stadthagen: Georgschacht im Modell: Naphtalingewinnung - Westseite. August 2013

Georgschacht im Modell: Naphtalingewinnung - Westseite. August 2013

MEC Stadthagen: Georgschacht im Modell: Naphtalingewinnung - Westseite, Verladerampe für kristallisiertes Naphtalin. August 2013

Georgschacht im Modell: Naphtalingewinnung - Westseite, Verladerampe für kristallisiertes Naphtalin. August 2013

MEC Stadthagen: Georgschacht im Modell: Naphtalingewinnung - Ostseite. August 2013

Georgschacht im Modell: Naphtalingewinnung - Ostseite. August 2013

MEC Stadthagen: Georgschacht im Modell: Naphtalingewinnung - Ostseite. Drucktank für Blasenrückstand (re.) und Auffangkessel für Naphtalin u. Anthracen-Öl. August 2013

Georgschacht im Modell: Naphtalingewinnung - Ostseite. Drucktank für Blasenrückstand (re.) und Auffangkessel für Naphtalin u. Anthracen-Öl. August 2013

MEC Stadthagen: Georgschacht im Modell: Teer-Destillation - Westseite. August 2013

Georgschacht im Modell: Teer-Destillation - Westseite. August 2013

MEC Stadthagen: Georgschacht im Modell: Teer-Destillation - drei Destillierblasen in offener Halle. August 2013

Georgschacht im Modell: Teer-Destillation - drei Destillierblasen in offener Halle. August 2013

MEC Stadthagen: Georgschacht im Modell: Teer-Destillation - Nordseite. August 2013

Georgschacht im Modell: Teer-Destillation - Nordseite. August 2013

MEC Stadthagen: Georgschacht im Modell: Teer-Destillation - Südseite. Blick in den Kesselraum. August 2013

Georgschacht im Modell: Teer-Destillation - Südseite. Blick in den Kesselraum. August 2013

MEC Stadthagen: Georgschacht im Modell: Naphtalingewinnung und Teer-Destillation - Ostseite. August 2013

Georgschacht im Modell: Naphtalingewinnung und Teer-Destillation - Ostseite. August 2013


Gasreinigung

Erbaut 1931.

MEC Stadthagen: Georgschacht: Gasreinigungsanlage. Firmenfoto Krupp-Koppers, 1931. Quelle: Berg- und Stadtmuseum Obernkirchen

Georgschacht: Gasreinigungsanlage. Firmenfoto Krupp-Koppers, 1931. Quelle: Berg- und Stadtmuseum Obernkirchen

MEC Stadthagen: Georgschacht: Gasreinigungsanlage. Firmenfoto Krupp-Koppers, 1931. Quelle: Berg- und Stadtmuseum Obernkirchen

Georgschacht: Gasreinigungsanlage. Firmenfoto Krupp-Koppers, 1931. Quelle: Berg- und Stadtmuseum Obernkirchen

MEC Stadthagen: Georgschacht: Gasreinigungsanlage. Firmenfoto Krupp-Koppers, 1931. Quelle: Berg- und Stadtmuseum Obernkirchen

Georgschacht: Gasreinigungsanlage. Firmenfoto Krupp-Koppers, 1931. Quelle: Berg- und Stadtmuseum Obernkirchen


Gasferndruckstation

Erbaut 1929.

Die Kokerei am Georgschacht lieferte mehr Gas als für den eigenen Bedarf benötigt wurde. Das überschüssige Gas wurde mit Überlandleitungen nach Hannover und Obernkirchen geliefert. Für diesen Transport musste das Gas verdichtet und mit einem konstanten Druck in das Rohrnetz übergeben werden.

MEC Stadthagen: Georgschacht: Gasferndruckstation um 1930. Quelle: Sammlung Ludewig

Georgschacht: Gasferndruckstation um 1930. Quelle: Sammlung Ludewig

MEC Stadthagen: Georgschacht: Gasferndruckstation im März 2010

Georgschacht: Gasferndruckstation im März 2010

MEC Stadthagen: Georgschacht: Grundriss der Gasferndruckstation. Quelle: Nieders. Staatsarchiv

Georgschacht: Grundriss der Gasferndruckstation. Quelle: Nieders. Staatsarchiv


Verwaltung

Das repräsentative Verwaltungsgebäude mit angegliedertem Kauentrakt war in seiner architektonischen Ausführung Maßstab und Vorbild für eine Vielzahl ähnlicher Gebäude am Beginn des 20. Jahrhunderts. Nicht umsonst wurde der umgangssprachliche Begriff der "Kohlenkirche" für dieses Gebäude geprägt. Es beherbergte nicht nur die Bergwerksverwaltung mit dem Direktorenbüro im Obergeschoss, sondern für Schaumburg neu Wasch- und Umkleideräume.

MEC Stadthagen: Georgschacht: Zechenhaus (Kohlenkirche) 1930. Quelle: Stadtarchiv

Georgschacht: Zechenhaus (Kohlenkirche) 1930. Quelle: Stadtarchiv

MEC Stadthagen: Georgschacht: Zechenhaus (Kohlenkirche) 1970. Quelle: Sammlung Ludewig

Georgschacht: Zechenhaus (Kohlenkirche) 1970. Quelle: Sammlung Ludewig

MEC Stadthagen: Georgschacht: Zechenhaus (Kohlenkirche) 2009.

Georgschacht: Zechenhaus (Kohlenkirche) 2009.

Elektrozentrale

Erbaut 1901-02

Energetisches Zentrum des Schachtgeländes war die Elektrozentrale, die zuerst mit Dampfmaschinen, später mit Turbogeneratoren, die für den Betrieb notwendige elektrische Energie für den Georgschacht bereitstellte. 

MEC Stadthagen: Georgschacht: Elektrozentrale 1930. Quelle Stadtarchiv

Georgschacht: Elektrozentrale 1930. Quelle Stadtarchiv

MEC Stadthagen: Georgschacht: Elektrozentrale 1905. Quelle Stadtarchiv

Georgschacht: Elektrozentrale 1905. Quelle Stadtarchiv

MEC Stadthagen: Georgschacht: Elektrozentrale 1954. Quelle Berg- und Stadtmuseum Obernkirchen

Georgschacht: Elektrozentrale 1954. Quelle Berg- und Stadtmuseum Obernkirchen

MEC Stadthagen: Georgschacht: Elektrozentrale 1959. Quelle Sammlung Ludewig

Georgschacht: Elektrozentrale 1959. Quelle Sammlung Ludewig

MEC Stadthagen: Georgschacht: Elektrozentrale. Schmuckfassade der Stadtseite 1999. Quelle: Stadtarchiv

Georgschacht: Elektrozentrale. Schmuckfassade der Stadtseite 1999. Quelle: Stadtarchiv

MEC Stadthagen: Georgschacht: Elektrozentrale. Schmuckfassade der Stadtseite 1999. Quelle: Stadtarchiv

Georgschacht: Elektrozentrale. Schmuckfassade der Stadtseite 1999. Quelle: Stadtarchiv

MEC Stadthagen: Georgschacht: Elektrozentrale September 2009

Georgschacht: Elektrozentrale September 2009

Kesselhaus I und II

Erbaut 1901-02

Zur eigenen Energieversorgung des Bergwerkes waren zwei Kesselhäuser vorhanden. Kesselhaus I mit Gasfeuerung und südlich davon Kesselhaus II mit Kohlefeuerung. Die Kesselhäuser versorgten nicht nur die Turbinen der Elektrozentrale, sondern über ein umfangreiches Rohrleitungsnetz die einzelnen Anlagen und Gebäude mit Dampf als Prozesswärme und Heizenergie. Auch die feuerlosen Lokomotiven füllten ihre Dampfspeicherkessel aus diesem Netz.

MEC Stadthagen: Georgschacht: Kesselhaus II und I 1930. Quelle: Stadtarchiv

Georgschacht: Kesselhaus II und I 1930. Quelle: Stadtarchiv

MEC Stadthagen: Georgschacht: Kesselhaus II und I 1930. Quelle: Stadtarchiv

Georgschacht: Kesselhaus II und I 1930. Quelle: Stadtarchiv

MEC Stadthagen: Georgschacht: Kesselhaus I 1930. Quelle: Stadtarchiv

Georgschacht: Kesselhaus I 1930. Quelle: Stadtarchiv

MEC Stadthagen: Georgschacht: Kesselhaus I und II 1930. Quelle: Stadtarchiv

Georgschacht: Kesselhaus I und II 1930. Quelle: Stadtarchiv

MEC Stadthagen: Georgschacht: Kesselhaus I und II 1970. Quelle: Sammlung Ludewig

Georgschacht: Kesselhaus I und II 1970. Quelle: Sammlung Ludewig

Auf diesem Werbebild der Firma Steffen & Nölle aus dem Jahr 1970 sind die Kesselhäuser ihrer Kesselanlagen beraubt und in Werkhallen umfunktioniert. Die Schornsteine sind gesprengt und die Hallen mit einem Neubautrakt verbunden.


Wasserturm und Tiefbrunnen

Erbaut 1901-02

Die Kesselanlagen zum Betrieb der Dampfmaschinen benötigten eine sichere Wasserversorgung. Es ist daher nicht verwunderlich, dass der Wasserturm eines der ältesten Gebäude des Georgschachtes ist. Südlich des 34m hohen Turmes steht das Tiefbrunnenhaus.

MEC Stadthagen: Georgschacht: Wasserturm und Tiefbrunnenhaus 1930. Quelle: Stadtarchiv

Georgschacht: Wasserturm und Tiefbrunnenhaus 1930. Quelle: Stadtarchiv

MEC Stadthagen: Georgschacht: Wasserturm und Tiefbrunnenhaus 1930. Quelle: Stadtarchiv

Georgschacht: Wasserturm und Tiefbrunnenhaus 1930. Quelle: Stadtarchiv

MEC Stadthagen: Georgschacht: Wasserturm September 2009

Georgschacht: Wasserturm September 2009

MEC Stadthagen: Georgschacht: Wasserturm September 2009

Georgschacht: Wasserturm September 2009

MEC Stadthagen:Georgschacht: Tiefbrunnenhaus 1937. Quelle: Sammlung Ludewig

Georgschacht: Tiefbrunnenhaus 1937. Quelle: Sammlung Ludewig

MEC Stadthagen: Georgschacht: Tiefbrunnenhaus September 2009

Georgschacht: Tiefbrunnenhaus September 2009


Werkstätten

Erbaut 1913

Im Südosten des Betriebsgeländes befinden sich die Hallen der technischen Werkstätten. Der Bau begann 1913 mit den zwei nördlichen Hallen: der Schmiede, einem zunächst nicht überdachten Montagehof und den Metallwerkstätten im Süden. Noch im gleichen Jahr wurde die Überdachung des Montagehofes genehmigt. 1922 wurden die Centralwerkstätten durch eine südliche Halle mit Speisesaal, Werkstattkaue, Tischlerei und Büros ergänzt. Der zwischen den Hallen liegende Freilagerplatz wurde 1938 durch einen fünften Hallenbau überbaut. In dieser Halle fanden neben der Tischlerei, Schulungsräume und eine Turnhalle Platz.

MEC Stadthagen: Die mechanischen Werkstätten um 1910. Quelle: Stadtarchiv 

Die mechanischen Werkstätten um 1910. Quelle: Stadtarchiv

MEC Stadthagen: Die Werkstätten um 1930, links unten die Tischlerei-Halle. Quelle: Stadtarchiv

Die Werkstätten um 1930, links unten die Tischlerei-Halle. Quelle: Stadtarchiv

MEC Stadthagen: Die Werkstätten um 1930, zwischen den Hallen ist der Freilagerplatz zu erkennen. Quelle: Stadtarchiv

Die Werkstätten um 1930, zwischen den Hallen ist der Freilagerplatz zu erkennen. Quelle: Stadtarchiv

MEC Stadthagen: Westansicht der Werkstätten im März 2012

Westansicht der Werkstätten im März 2012

MEC Stadthagen: Ostansicht der Werkstätten im März 2012

Ostansicht der Werkstätten im März 2012

MEC Stadthagen: Ansicht der Werkstätten von Westen

Ansicht der Werkstätten von Westen


Modell_Werkhallen Westseite

MEC Stadthagen: Ansicht der Werkstätten von Osten

Ansicht der Werkstätten von Osten


Modell_Werkhallen Ostseite

Pförtnerei

1927 wurde der südliche Eingang durch ein neues Pförtnergebäude neugestaltet. Neben dem Pförtnerbüro war ein großer Markenraum gelegen. Zugangsarkaden schützen die Mitarbeiter vor dem Wetter. Zur Rechten öffnete sich die große Fahrradhalle mit Stellplätzen für über 380 Fahrrädern.

MEC Stadthagen: Pförtnerei - Ansicht von Norden. Feb. 2010

Pförtnerei - Ansicht von Norden. Feb. 2010

MEC Stadthagen: Pförtnerei - Hinter dem Holztor und den zugemauerten Wandöffnungen befanden sich die Zugangsarkaden. Feb. 2010

Pförtnerei - Hinter dem Holztor und den zugemauerten Wandöffnungen befanden sich die Zugangsarkaden. Feb. 2010

Die Segmente Georgschacht im Bau

Im Januar 2012 haben wir mit dem Bau des zweiten Abschnittes begonnen.

Diesen Bauabschnitt haben wir wegen seines beachtlichen Umfangs in zwei Teilabschnitte aufgeteilt. Im ersten Abschnitt wird die westliche Gleisanlage mit den Hauptgebäuden von den Werkstätten im Süden, über die Förderschächte und Kohlenwäsche, die Kokerei, den Koksbrecher, bis zu den Absetzteichen im Norden entstehen. Im zweiten Abschnitt folgen dann die östlichen Anlagen.

MEC Stadthagen:Segmentkästen Georgschacht: Blick von Südost. Stellprobe mit dem Förderschacht 1 und der Kohlenwäsche. März 2012

Segmentkästen Georgschacht: Blick von Südost. Stellprobe mit dem Förderschacht 1 und der Kohlenwäsche. März 2012

MEC Stadthagen:Segmentkästen Georgschacht: Blick von Süden. Stellprobe mit dem Förderschacht 1 und der Kohlenwäsche. März 2012

Segmentkästen Georgschacht: Blick von Süden. Stellprobe mit dem Förderschacht 1 und der Kohlenwäsche. März 2012

MEC Stadthagen: Segmentkästen Georgschacht: Blick von Nordwest. Stellprobe mit dem Förderschacht 1 und der Kohlenwäsche. März 2012

Segmentkästen Georgschacht: Blick von Nordwest. Stellprobe mit dem Förderschacht 1 und der Kohlenwäsche. März 2012

MEC Stadthagen: Segmentkästen Georgschacht: Blick von Nordwest. Höhenentwicklung der Gleistrassen. Links der Koksbrecher, dahinter die Kokerei und im Hintergrund der Förderschacht 1 mit der Kohlenwäsche. März 2012

Segmentkästen Georgschacht: Blick von Nordwest. Höhenentwicklung der Gleistrassen. Links der Koksbrecher, dahinter die Kokerei und im Hintergrund der Förderschacht 1 mit der Kohlenwäsche. März 2012

Das Gelände des Georgschachtes steigt in Richtung Süden um einige Höhenmeter an. Um eine ebene Gleislage zu erreichen, wurden die Zechengleise in Richtung Nord aufgefüttert.

MEC Stadthagen: Segmentkästen Georgschacht: Blick von Süden. Höhenentwicklung der Gleistrassen.  März 2012

Segmentkästen Georgschacht: Blick von Süden. Höhenentwicklung der Gleistrassen.  März 2012

In den folgenden Arbeitsgängen entsteht der Landschaftsuntergrund mit Gleisplanum, der Straße "Am Georgschacht" und der Bergehalde im Westen der Schachtanlage.

MEC Stadthagen: Georgschacht: Gleisplanum für Streckengleis (links) und Zechenbahnhof (rechts). Stand: Mai 2012

Segmentkästen Georgschacht: Gleisplanum für Streckengleis (links) und Zechenbahnhof (rechts). Stand: Mai 2012

MEC Stadthagen: Georgschacht: Bahnübergang "Schachtstraße" mit dem nördlichen Höhenunterschied zwischen dem Streckengleis im Vordergrung und dem Zechenbahnhof im Hintergrund. Stand: Mai 2012

Segmentkästen Georgschacht: Bahnübergang "Schachtstraße" mit dem nördlichen Höhenunterschied zwischen dem Streckengleis im Vordergrund und dem Zechenbahnhof im Hintergrund. Stand: Mai 2012 

MEC Stadthagen: Georgschacht: Gesamtansicht der ersten Segmentgruppe. Stand: Juni 2012

Segmentkästen Georgschacht: Gesamtansicht der ersten Segmentgruppe. Stand: Juni 2012

MEC Stadthagen: Segmentkästen Georgschacht: Die neuen Segmente sind zum ersten Mal an die "Stadthagen-West"-Gruppe angesetzt. 01. August 2012

Segmentkästen Georgschacht: Die neuen Segmente sind zum ersten Mal an die "Stadthagen-West"-Gruppe angesetzt. 01. August 2012 


Segmentkästen Georgschacht: Gesamtansicht der Segmentgruppe am neuen Standort. 01. August 2012 

Als nächster Arbeitsschritt erfolgt die Verlegung des Streckengleises der R.St.E und die Zufahrtsgleise zum Zechenbahnhof.

MEC Stadthagen: Segmentkästen Georgschacht: Gleisverlegung, die Gleise der RStE-Strecke nähern sich der Anschlussweiche. 24. August 2012

Segmentkästen Georgschacht: Gleisverlegung, die Gleise der RStE-Strecke nähern sich der Anschlussweiche. 24. August 2012 

MEC Stadthagen: Segmentkästen Georgschacht: Gleisverlegung, erste Rollversuche aus den die Gleisen der RStE-Strecke. 24. August 2012

Segmentkästen Georgschacht: Gleisverlegung, erste Rollversuche aus den die Gleisen der RStE-Strecke. 24. August 2012 

MEC Stadthagen: Segmentkästen Georgschacht: Verlegung der Übergabegleise. September 2012

Segmentkästen Georgschacht: Verlegung der Übergabegleise. September 2012 

MEC Stadthagen: Segmentkästen Georgschacht: Verlegung der Ladegleise. September 2012

Segmentkästen Georgschacht: Verlegung der Ladegleise. September 2012 

Für die Konzeption der Segmentkästen der zweiten Reihe fand eine Stellprobe mit den Gebäuden der Ammonium-Fabrik, des Salzlagers und der Sulfat-(C.A.S.)-Anlage statt. Hierbei wurde zum ersten Mal die Breite der Georgschachtanlage und ihre teilweise dichte Bebauung sichtbar.

MEC Stadthagen: Segmentkästen Georgschacht: Stellprobe Ammoniumfabrik, Salzlager und Sulfatfabrik. März 2013

Segmentkästen Georgschacht: Stellprobe Ammoniumfabrik, Salzlager und Sulfatfabrik. März 2013

MEC Stadthagen: Segmentkästen Georgschacht: Stellprobe Sulfatfabrik, Salzlager und Ammoniumfabrik. März 2013

Segmentkästen Georgschacht: Stellprobe Sulfatfabrik, Salzlager und Ammoniumfabrik. März 2013

MEC Stadthagen: Segmentkästen Georgschacht: Stellprobe Kokerei, Ammoniumfabrik und Salzlager. März 2013

Segmentkästen Georgschacht: Stellprobe Kokerei, Ammoniumfabrik und Salzlager. März 2013

MEC Stadthagen: Segmentkästen Georgschacht: Stellprobe Sulfatfabrik, Salzlager, Ammoniumfabrik und Kokerei. März 2013

Segmentkästen Georgschacht: Stellprobe Sulfatfabrik, Salzlager, Ammoniumfabrik und Kokerei. März 2013

MEC Stadthagen: Segmentkästen Georgschacht: Stellprobe Nebenproduktgewinnung: von links: Teerdestillation, Naphtalingewinnung, Benzolfabrik, Sulfatfabrik, Salzlager, Ammoniumfabrik. Oktober 2013

Segmentkästen Georgschacht: Stellprobe Nebenproduktgewinnung: von links: Teerdestillation, Naphtalingewinnung, Benzolfabrik, Sulfatfabrik, Salzlager, Ammoniumfabrik. Oktober 2013

MEC Stadthagen: Segmentkästen Georgschacht: Abraumbrücke von der Kohlenwäsche zur Halde. Oktober 2013

Segmentkästen Georgschacht: Abraumbrücke von der Kohlenwäsche zur Halde. Oktober 2013

MEC Stadthagen: Segmentkästen Georgschacht: Straße "Am Georgschacht". Oktober 2013

Segmentkästen Georgschacht: Straße "Am Georgschacht". Oktober 2013

MEC Stadthagen:Segmentkästen Georgschacht: Abraumbrücke, Kohlenwäsche, Förderanlagen I und II. Oktober 2013

Segmentkästen Georgschacht: Abraumbrücke, Kohlenwäsche, Förderanlagen I und II. Oktober 2013

Haltepunkt Georgschacht

Der ursprüngliche Haltepunkt Georgschacht lag bis 1938 in Höhe der neuen Kokerei östlich des RStE-Gleises. Er bestand aus einem geschütteten Bahnsteig mit Wartehalle und einer Wärterbude.

Mit dem Bau der neuen Kokerei war der Zugang zur Schachtanlage an dieser Stelle problematisch. Es wurde ein neuer Standort südöstlich des Bahnübergangs "Am Georgschacht" gefunden. Die im Süden ebenfalls errichtete Pförtnerei ermöglichte den Zugang zum Betriebsgelände.

Der Haltepunkt verfügte nun über einen betonierten Bahnsteig, ein neues Empfangsgebäude mit Dienst- und Warteraum und ein weiter südlich gelegenes Abortgebäude.

MEC Stadthagen: Arbeiter-Wochenkarte der R.St.E von 1906 - Sammlung Ludewig

Arbeiter-Wochenkarte der R.St.E von 1906 - Sammlung Ludewig

MEC Stadthagen: Lageplan des Haltepunktes Georgschacht ab 1938.

Lageplan des Haltepunktes Georgschacht ab 1938.


RStE_Blatt_23_Stadthagen_Schacht_F0


MEC Stadthagen: Georgschacht Haltepunkt Zustand 2009

Georgschacht: Haltepunkt Zustand 2009

MEC Stadthagen: Georgschacht Haltepunkt Zustand 2009

Georgschacht: Haltepunkt Zustand 2009

MEC Stadthagen: Haltepunkt Georgschacht: Plan des Empfangsgebäudes. 1938. Quelle: Stadtarchiv Stadthagen

Haltepunkt Georgschacht: Plan des Empfangsgebäudes. 1938. Quelle: Stadtarchiv Stadthagen

MEC Stadthagen: Haltepunkt Georgschacht: Plan des Eilgutschuppens. 1938. Quelle: Stadtarchiv Stadthagen

Haltepunkt Georgschacht: Plan des Eilgutschuppens. 1938. Quelle: Stadtarchiv Stadthagen

MEC Stadthagen: Haltepunkt Georgschacht: Plan der Abortanlage. 1938. Quelle: Stadtarchiv Stadthagen

Haltepunkt Georgschacht: Plan der Abortanlage. 1938. Quelle: Stadtarchiv Stadthagen

Im Frühjahr 2012 fanden auf dem Gelände des ehemaligen Haltepunktes umfangreiche Rodungsarbeiten statt.

MEC Stadthagen: Georgschacht Haltepunkt Zustand März 2012

Georgschacht: Haltepunkt Zustand März 2012

MEC Stadthagen: Georgschacht Haltepunkt Zustand März 2012

Georgschacht: Haltepunkt Zustand März 2012

MEC Stadthagen: Georgschacht: Schuppen am Haltepunkt Zustand März 2012

Georgschacht: Schuppen am Haltepunkt Zustand März 2012

MEC Stadthagen: Georgschacht: Schuppen am Haltepunkt Zustand 27.Mai 2012

Georgschacht: Schuppen am Haltepunkt Zustand 27. Mai 2012

MEC Stadthagen: Georgschacht: Haltepunkt Zustand 27. Mai 2012

Georgschacht: Haltepunkt Zustand 27. Mai 2012

MEC Stadthagen: Georgschacht: Der Haltepunkt musste einer neuen Industrieansiedlung weichen. Zustand 27. Mai 2012

Georgschacht: Der Haltepunkt musste einer neuen Industrieansiedlung weichen. Zustand 27. Mai 2012

Der neue Haltepunkt im Modell

1938 wurde der Haltepunkt an das südliche Ende des Georgschachtes verlegt. Auf dem Gelände des Schachtes F0 wurde ein neues Empfsngsgebäude mit Dienst- und Warteraum errichtet. Südlich davon eine einfache Abortanlage mit zwei Trockenklos. Nördlich direkt an die Abraumhalde von F0 ein Güterschuppen.

MEC Stadthagen: Haltepunkt Georgschacht - Die drei Gebäude warten auf die Fertigstellung ihres Standplatzes. März 2013

Haltepunkt Georgschacht - Die drei Gebäude warten auf die Fertigstellung ihres Standplatzes. März 2013

An unserem Aufstellort ist es erforderlich, den Haltepunkt auf einem schwenkbaren Brückenteil anzuordnen - auch wir werden nicht jünger und gebückt unter diesem Anlagenteil hindurch zu gehen, würde früher oder später zu einer schmerzhaten Kollision führen. Eine Klappbrücke ist da schon bequemer und sicherer.

MEC Stadthagen: Haltepunkt Georgschacht: Güterschuppen, Empangsgebäude und Abortanlage (von Rechts). Mai 2013

Haltepunkt Georgschacht: Güterschuppen, Empangsgebäude und Abortanlage (von Rechts). Mai 2013

MEC Stadthagen: Haltepunkt Georgschacht: Abweichend vom Original müssen unsere Gebäude im Bogen aufgestellt werden. Mai 2013

Haltepunkt Georgschacht: Abweichend vom Original müssen unsere Gebäude im Bogen aufgestellt werden. Mai 2013

MEC Stadthagen: Haltepunkt Georgschacht. Mai 2013

Haltepunkt Georgschacht. Mai 2013

MEC Stadthagen: Haltepunkt Georgschacht. Die Klappbrücke nimmt Gestalt an. September 2013

Haltepunkt Georgschacht. Die Klappbrücke nimmt Gestalt an. September 2013

Ehemalige Schachtanlagen E0 und F0

Südlich des Haltepunktes schlossen sich die Gleisanlagen der ehemaligen Schachtanlagen F0 (gesprochen F Null) und E0 (E Null), die vor der Eröffnung des Georgschachtes der Förderung auf der E- und F-Sohle dienten. Abraumhalden und Weichenmarkierungen erinnern noch heute an diese Anlagen.

MEC Stadthagen: Schachtanlage F0: Grubenbahnhof der Schachtanlage. Nach Inbetriebnahme des Georgschachtes abgebaut.

Schachtanlage F0: Grubenbahnhof der Schachtanlage. Nach Inbetriebnahme des Georgschachtes abgebaut. 


RStE_Blatt_23_Stadthagen_Schacht_F0

MEC Stadthagen: Gelände des ehemaligen Schachtes F0 im Jahr 2010

Gelände des ehemaligen Schachts F0 im Jahr 2010

MEC Stadthagen: Schachtanlage E0: Die Gleisanlagen des Schachtes E0 werden hier von der Firma Wilharm zum Verladen von Sandstein mittels zweier Sturzbrücken verwendet. Mitte der 30er Jahre abgebaut.

Schachtanlage E0: Die Gleisanlagen des Schachtes E0 werden hier von der Firma Wilharm zum Verladen von Sandstein mittels zweier Sturzbrücken verwendet. Mitte der 30er Jahre abgebaut. 


RStE_Blatt_22_Wackerfeld

Man blickt hier auf die ehemaligen Gleisanlagen. Der eigentliche Schacht befand sich hinter den heutigen Hallen.

MEC Stadthagen: Gelände des ehemalgen Schachtes E0 im Jahr 2010

Gelände des ehemalgen Schachts E0 im Jahr 2010

Der Bereich der Gleisanlagen ist heute überbaut. Am südlichen Ende befindet sich noch eine Weichenkennzeichnung in Form eines Sandsteinblockes mit Angabe des abzweigenden Gleishalbmessers. Links und rechts des Gleiskörpers zeugen Abraumhalden von der ehemaligen Bergbautätigkeit.

Die beiden Schächte wurden mit Inbetriebnahme des Georgschachtes aufgegeben. Zwei Ladegleise wurden zwischen 1912 und 1930 zur Verladung von Kohlen und Sandsteinen aus dem weiter östlich gelegenen Steinbruch Wilharm genutzt. Das Material wurde mit einer Feldbahn zum Versturz in Regelspurwagen angeliefert.

Im Jahr 1946 erbaute Heinrich Karl Wilkening auf dem Gelände seine Lack-Fabrikation eine Betonbaracke und südlich davon ein Wohnhaus.

MEC Stadthagen: HK Wilkening - Wohnhaus von Süden. März 2013

HK Wilkening - Wohnhaus von Süden. März 2013

MEC Stadthagen: HK Wilkening - Wohnhaus von Osten. März 2013

HK Wilkening - Wohnhaus von Osten. März 2013

MEC Stadthagen: HK Wilkening - Wohnhaus von Norden. März 2013

HK Wilkening - Wohnhaus von Norden. März 2013

MEC Stadthagen:HK Wilkening - Wohnhaus und Fertigungsbaracke zwischen Gleis und Strasse. Mai 2013

HK Wilkening - Wohnhaus und Fertigungsbaracke zwischen Gleis und Strasse. Mai 2013

Wird fortgesetzt...